5 Bedroom
3 Bathroom
2,506 ft2
Other
Forced Air, See Remarks
Landscaped
$809,000
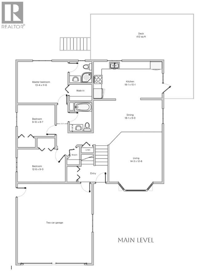
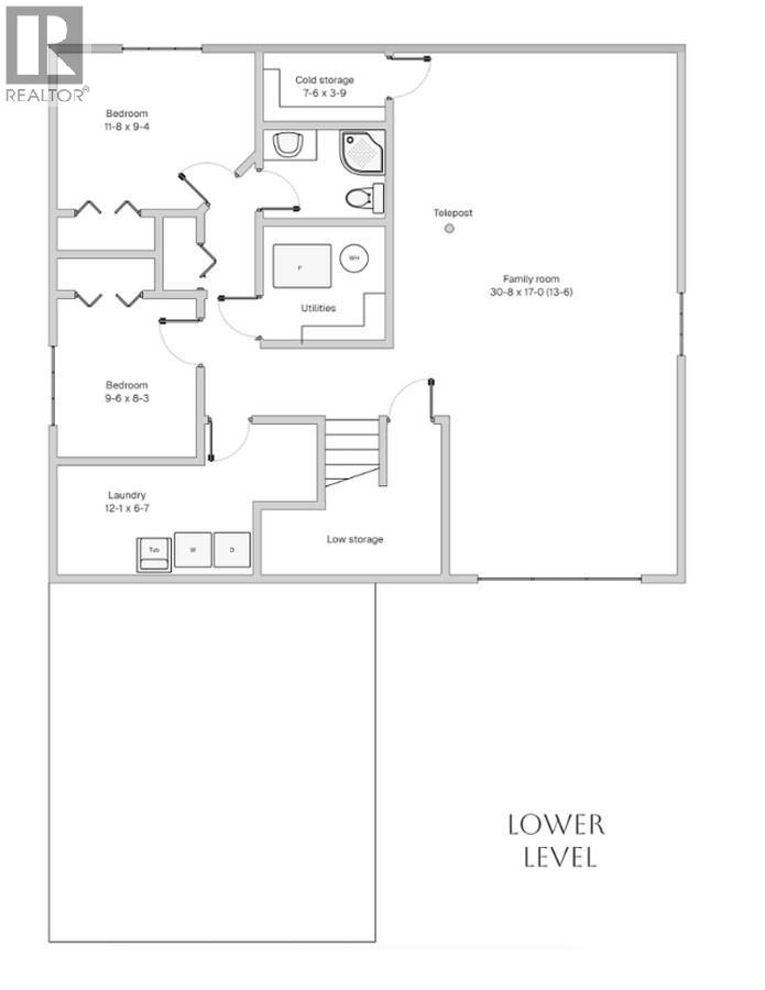
*** For more information, please click Brochure button. *** Welcome to 1510 Cedar Street — a bright, spacious home in an incredible location! This 2,506 sq ft split-level residence offers comfort, space, and stunning mountain views, all nestled in a quiet, family-friendly neighborhood. With 5 bedrooms and 3 bathrooms, the main level features 3 bedrooms and 2 bathrooms, while the lower daylight basement level includes an additional 2 bedrooms and 1 bathroom (see floor plans for layout). Step outside to enjoy the expansive 214 sq ft L-shaped deck off the kitchen — perfect for entertaining or simply relaxing. The home sits on a 0.17-acre lot with a fully fenced side and backyard, ideal for families or pets. An attached double garage adds convenience and extra storage. The location is unbeatable, just minutes away from the disc golf course, Rotary trails, Mount 7 biking trails, bike skills park, sports fields, playground, and new tennis and pickleball courts. Upgrades include: complete replacement of all Poly-B plumbing with PEX piping (January 2026), main water valve upgraded to current code with pressure regulating valve, dual check valve, and expansion tank (January 2026), new furnace and water heater (2023), roof (2013), and windows (2006) (id:21947)
Property Details
|
MLS® Number
|
10380010 |
|
Property Type
|
Single Family |
|
Neigbourhood
|
Golden |
|
Amenities Near By
|
Park, Recreation |
|
Community Features
|
Family Oriented |
|
Parking Space Total
|
4 |
|
View Type
|
Mountain View |
Building
|
Bathroom Total
|
3 |
|
Bedrooms Total
|
5 |
|
Architectural Style
|
Other |
|
Constructed Date
|
1995 |
|
Construction Style Attachment
|
Detached |
|
Fire Protection
|
Smoke Detector Only |
|
Heating Type
|
Forced Air, See Remarks |
|
Roof Material
|
Asphalt Shingle |
|
Roof Style
|
Unknown |
|
Stories Total
|
1 |
|
Size Interior
|
2,506 Ft2 |
|
Type
|
House |
|
Utility Water
|
Municipal Water |
Parking
|
Additional Parking
|
|
|
Attached Garage
|
2 |
Land
|
Acreage
|
No |
|
Fence Type
|
Fence |
|
Land Amenities
|
Park, Recreation |
|
Landscape Features
|
Landscaped |
|
Sewer
|
Municipal Sewage System |
|
Size Irregular
|
0.17 |
|
Size Total
|
0.17 Ac|under 1 Acre |
|
Size Total Text
|
0.17 Ac|under 1 Acre |
Rooms
| Level |
Type |
Length |
Width |
Dimensions |
|
Basement |
Bedroom |
|
|
11'8'' x 9'4'' |
|
Basement |
Other |
|
|
7'6'' x 3'9'' |
|
Basement |
Utility Room |
|
|
8'2'' x 7'6'' |
|
Basement |
Laundry Room |
|
|
12'1'' x 6'7'' |
|
Basement |
3pc Bathroom |
|
|
Measurements not available |
|
Basement |
Bedroom |
|
|
9'6'' x 8'3'' |
|
Basement |
Family Room |
|
|
30'8'' x 17'0'' |
|
Main Level |
3pc Bathroom |
|
|
Measurements not available |
|
Main Level |
4pc Bathroom |
|
|
Measurements not available |
|
Main Level |
Bedroom |
|
|
9'10'' x 8'7'' |
|
Main Level |
Bedroom |
|
|
12'8'' x 9'0'' |
|
Main Level |
Primary Bedroom |
|
|
13'4'' x 11'6'' |
|
Main Level |
Kitchen |
|
|
18'1'' x 10'1'' |
|
Main Level |
Dining Room |
|
|
18'1'' x 9'0'' |
|
Main Level |
Living Room |
|
|
14'3'' x 12'8'' |
https://www.realtor.ca/real-estate/29488185/1510-cedar-street-golden-golden