2 Bedroom
2 Bathroom
938 ft2
Central Air Conditioning
Forced Air
$359,000
Starter or retirement property! Welcome to 4789 Riverview Drive Edgewater. The perfect starter home or retirement downsize, this bright and functional home on a beautiful mature lot in a great location in Edgewater is exactly what you have been looking for! Forget the hallways and elevators of a condo, or the rules and fees of a mobile home park- own your own land and your own detached home at a price you can afford! Mature heirloom apple trees, beautiful fenced yard with the perfect amount of grass, stunning flowers, nice little workshop/shed, great garden area, rear lane access, room to potentially build a garage, views of the Purcell Mountains and the Rocky Mountains, low traffic location.... what is not to love?? Soak up the fresh air and enjoy the outdoor living offered by the huge deck. Inside you will find a bright and spacious layout, with real drywall, and nice flooring- this is not your typical manufactured home. Two full bedrooms, including a very spacious primary bedroom with walk in closet and ensuite, a total of two full baths, kitchen with tones of storage and counter space... Grab the great vibes and make this your new home! But don't hesitate! (id:21947)
Property Details
|
MLS® Number
|
10377908 |
|
Property Type
|
Single Family |
|
Neigbourhood
|
Edgewater North |
|
Features
|
Balcony |
Building
|
Bathroom Total
|
2 |
|
Bedrooms Total
|
2 |
|
Appliances
|
Refrigerator, Dishwasher, Dryer, Range - Electric, Microwave, Washer |
|
Constructed Date
|
1997 |
|
Cooling Type
|
Central Air Conditioning |
|
Heating Type
|
Forced Air |
|
Roof Material
|
Asphalt Shingle |
|
Roof Style
|
Unknown |
|
Stories Total
|
1 |
|
Size Interior
|
938 Ft2 |
|
Type
|
Manufactured Home |
|
Utility Water
|
Government Managed |
Parking
Land
|
Acreage
|
No |
|
Current Use
|
Other |
|
Fence Type
|
Fence |
|
Sewer
|
Municipal Sewage System |
|
Size Irregular
|
0.14 |
|
Size Total
|
0.14 Ac|under 1 Acre |
|
Size Total Text
|
0.14 Ac|under 1 Acre |
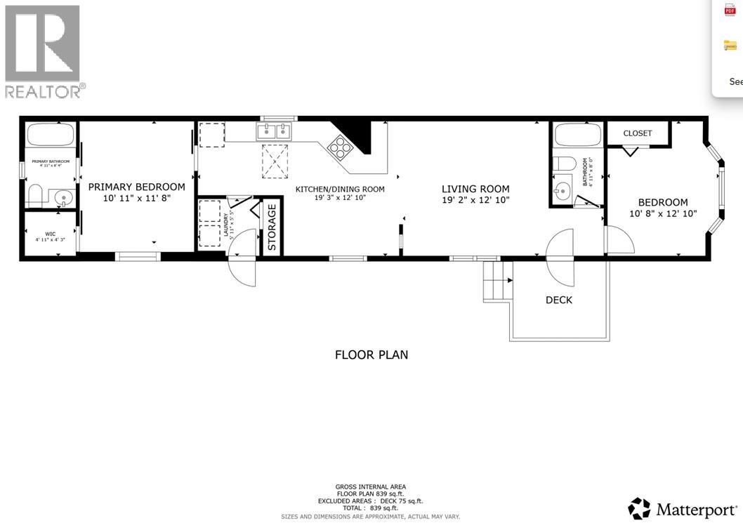
Rooms
| Level |
Type |
Length |
Width |
Dimensions |
|
Main Level |
Bedroom |
|
|
10'8'' x 12'10'' |
|
Main Level |
Laundry Room |
|
|
5'11'' x 5'5'' |
|
Main Level |
Full Ensuite Bathroom |
|
|
Measurements not available |
|
Main Level |
Full Bathroom |
|
|
Measurements not available |
|
Main Level |
Primary Bedroom |
|
|
10'11'' x 11'8'' |
|
Main Level |
Kitchen |
|
|
19'3'' x 12'10'' |
|
Main Level |
Living Room |
|
|
19'2'' x 12'10'' |
https://www.realtor.ca/real-estate/29438346/4789-riverview-drive-edgewater-edgewater-north