4895 Lynx Crescent Radium Hot Springs, British Columbia V0A 1M0

1 Bedroom 1 Bathroom 480 ft2
Fireplace Central Air Conditioning Forced Air Landscaped, Underground Sprinkler

$249,900

Maintenance, Reserve Fund Contributions, Ground Maintenance, Property Management, Other, See Remarks, Waste Removal

$130 Monthly

Discover the ultimate mountain retreat at Lynx Ridge, an exclusive, gated RV community where pride of ownership is evident at every turn. This spacious, private, treed lot is fully serviced with municipal water and sewer. Meticulously maintained by the original owners, the property features a luxury Woodland Park model nestled under mature trees that provide a refreshing canopy from the summer heat. The outdoor living space is designed for entertaining, boasting a durable deck, large gazebo and a storage shed. Inside, the home shines with a bright dining/living/kitchen and premium finishes and appliances selected when the unit was being manufactured. The bedroom has a king bed and loads of storage space. A versatile forced air system provides both AC and heat, ensuring year-round comfort. Residents enjoy a central amenity building with laundry and showers, while a nominal annual fee grants access to the neighbouring RidgeView Resort for swimming, tennis, gym facilities, mini-golf and more. Located just a short drive from shops, restaurants, Panorama’s ski slopes, world-class golf, and the beaches of Lake Windermere, this property offers the perfect blend of relaxation and adventure. (id:21947)

Property Details

MLS® Number 10381659
Property Type Recreational
Neigbourhood Radium Hot Springs
Community Name Lynx Ridge
Amenities Near By Golf Nearby, Recreation
Features Private Setting, Treed, Balcony

Building

Bathroom Total 1
Bedrooms Total 1
Amenities Laundry - Coin Op
Appliances Refrigerator, Dishwasher, Dryer, Range - Gas, Microwave, Washer
Constructed Date 2014
Cooling Type Central Air Conditioning
Exterior Finish Vinyl Siding
Fireplace Fuel Electric
Fireplace Present Yes
Fireplace Total 1
Fireplace Type Unknown
Foundation Type None
Heating Type Forced Air
Roof Material Asphalt Shingle
Roof Style Unknown
Stories Total 1
Size Interior 480 Ft2
Type Park Model Mobile Home
Utility Water Municipal Water

Parking

Surfaced

Land

Access Type Easy Access
Acreage No
Land Amenities Golf Nearby, Recreation
Landscape Features Landscaped, Underground Sprinkler
Sewer Municipal Sewage System
Size Irregular 0.1
Size Total 0.1 Ac|under 1 Acre
Size Total Text 0.1 Ac|under 1 Acre

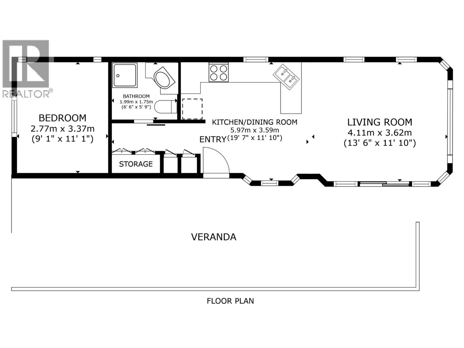
Rooms

Level Type Dimensions
Main Level 3pc Bathroom Measurements not available
Main Level Kitchen 10' x 8'
Main Level Living Room 10'3'' x 10'
Main Level Primary Bedroom 9' x 12'

Utilities

Cable Available
Electricity Available
Telephone Available
Sewer Available
Water Available

https://www.realtor.ca/real-estate/29552997/4895-lynx-crescent-radium-hot-springs-radium-hot-springs

Contact Us

Contact us for more information

Generating Captcha

Your Favourites

 

No Favourites Found