2 Bedroom
1 Bathroom
860 ft2
Bungalow
Baseboard Heaters
Acreage
$1,149,000
Wow - beautiful Spillimacheen Ranch - ( heritage homestead - 1898) this 154 acre ranch ( mixed 80 acres pasture, 74 acres wooded- approx.) has outstanding wetland, mountain, and pastoral views. The property has direct access of Hwy 95, comes with a modest 860 square foot home with an undeveloped basement for future expansion. Other features of the property is a newer 1000 sq foot insulated shop, for 3 vehicles, a 8 foot elk fence, surrounding the house compound and acreage that is planted with 150 hazelnut trees. The property has an irrigation pond w/submersible pump, and a gravel pit. There is a small portion (4-5 acres) of the parcel laying on the westside of the highway right on the Columbia River wetlands. If you are looking for a beautiful mountain ranch on the western slopes of the Rockies, that has you central to Radium ( 25 min - 42 km north of Radium) and Golden recreational amenities, and is an outdoor lovers dream zone for those that love the outstanding hunting, fishing, this is a great place to check out. A great place to live the dream. (id:21947)
Property Details
|
MLS® Number
|
10379083 |
|
Property Type
|
Single Family |
|
Neigbourhood
|
Edgewater North |
|
Parking Space Total
|
3 |
Building
|
Bathroom Total
|
1 |
|
Bedrooms Total
|
2 |
|
Architectural Style
|
Bungalow |
|
Basement Type
|
Full |
|
Constructed Date
|
1981 |
|
Construction Style Attachment
|
Detached |
|
Foundation Type
|
Preserved Wood |
|
Heating Type
|
Baseboard Heaters |
|
Roof Material
|
Asphalt Shingle |
|
Roof Style
|
Unknown |
|
Stories Total
|
1 |
|
Size Interior
|
860 Ft2 |
|
Type
|
House |
|
Utility Water
|
Dug Well |
Parking
Land
|
Acreage
|
Yes |
|
Size Irregular
|
154 |
|
Size Total
|
154 Ac|100+ Acres |
|
Size Total Text
|
154 Ac|100+ Acres |
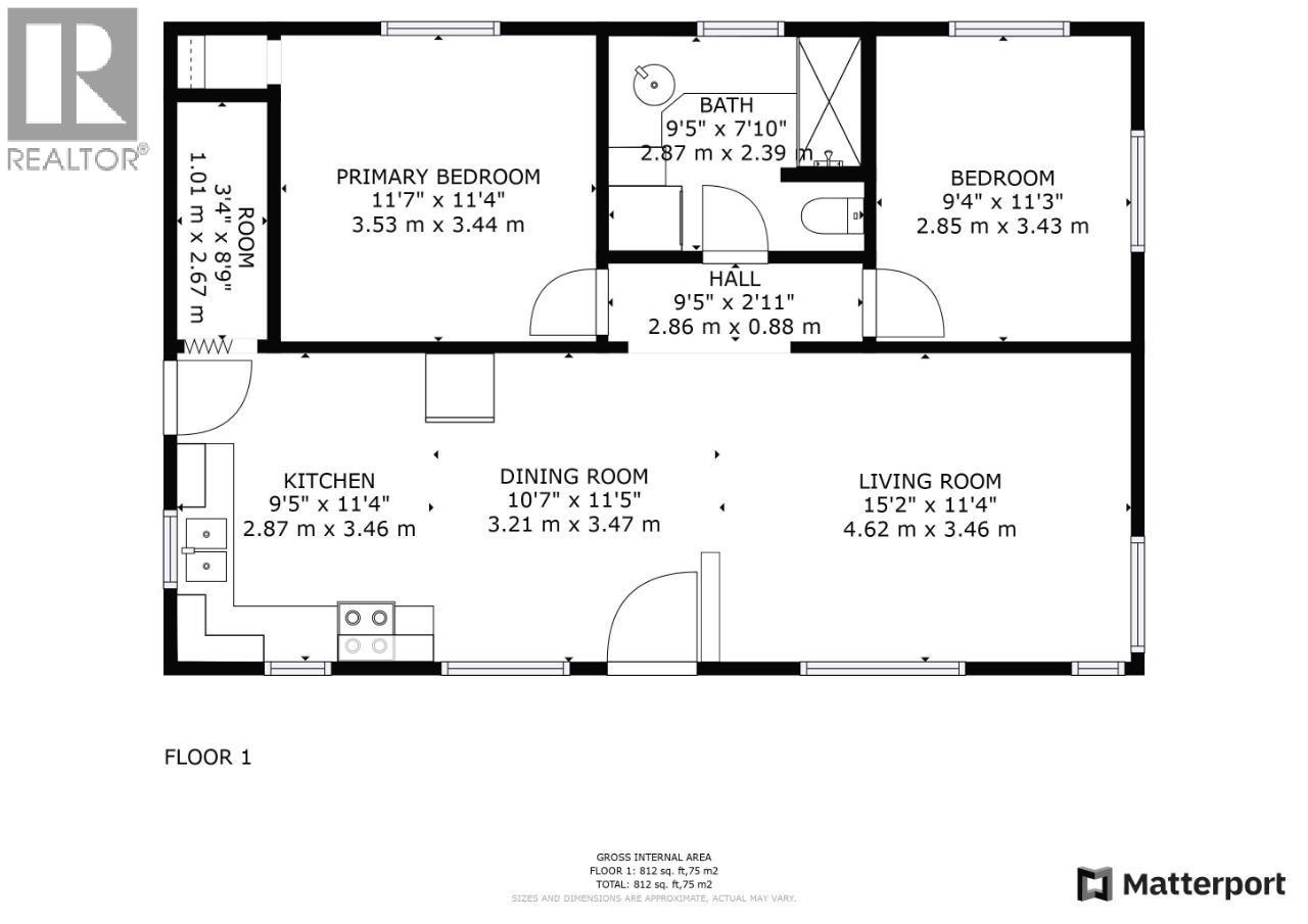
Rooms
| Level |
Type |
Length |
Width |
Dimensions |
|
Main Level |
4pc Bathroom |
|
|
Measurements not available |
|
Main Level |
Bedroom |
|
|
11'4'' x 9'6'' |
|
Main Level |
Primary Bedroom |
|
|
11'6'' x 11'4'' |
|
Main Level |
Kitchen |
|
|
19' x 11'4'' |
|
Main Level |
Living Room |
|
|
16' x 11'4'' |
https://www.realtor.ca/real-estate/29459273/726-95-highway-spillimacheen-edgewater-north