8040 Radium Golf Course Road Unit# 7 Radium Hot Springs, British Columbia V0A 1M0

3 Bedroom 2 Bathroom 1,578 ft2
Split Level Entry Baseboard Heaters

$399,000

Maintenance, Cable TV, Reserve Fund Contributions, Insurance, Ground Maintenance, Other, See Remarks, Sewer, Waste Removal, Water

$512 Monthly

*Great views! *Great layout! *Great condition! Welcome to #7 Radium Hill. You are up on top (no basement bedrooms here) with lots of sunshine (south facing covered deck) and awesome views of the Radium Golf Course, with glimpses of the Purcell and Rocky Mountains. This unit has had an extensive renovation (kitchen, bathrooms, flooring, paint) about ten years ago and has been lightly used (not used for short term rentals). This the largest layout, featuring three full bedrooms, sauna, and two lofts (perfect for sleeping the entire extended family). Whether this is a recreational retreat and the chance to make memories in the mountains, or even viable for full time living- don't hesitate on this quality offering! (id:21947)

Property Details

MLS® Number 10371663
Property Type Single Family
Neigbourhood Radium Hot Springs
Community Name Radium Golf Course Condos
Community Features Rentals Allowed

Building

Bathroom Total 2
Bedrooms Total 3
Architectural Style Split Level Entry
Constructed Date 1981
Construction Style Attachment Attached
Construction Style Split Level Other
Heating Type Baseboard Heaters
Stories Total 3
Size Interior 1,578 Ft2
Type Row / Townhouse
Utility Water Private Utility

Parking

Additional Parking

Land

Acreage No
Sewer Municipal Sewage System
Size Total Text Under 1 Acre

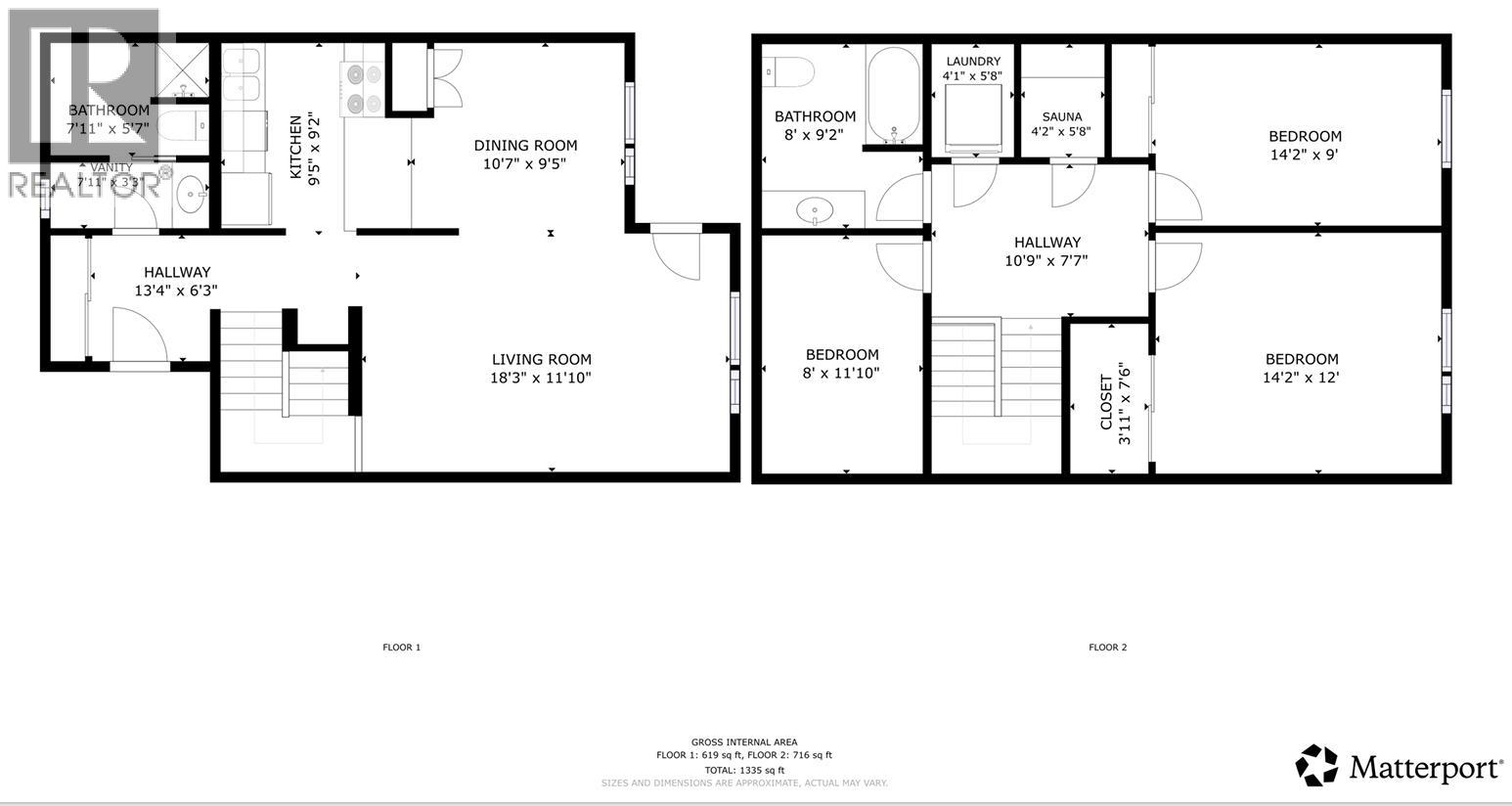
Rooms

Level Type Dimensions
Second Level Other 3'11'' x 7'6''
Second Level Laundry Room 4'1'' x 5'8''
Second Level Other 10'9'' x 7'7''
Second Level Sauna 4'2'' x 5'8''
Second Level Primary Bedroom 14'2'' x 12'
Second Level Bedroom 14'2'' x 9'
Second Level Bedroom 8' x 11'10''
Second Level Full Bathroom 8' x 9'2''
Main Level Other 13'4'' x 6'3''
Main Level Other 7'11'' x 3'3''
Main Level Living Room 18'3'' x 11'10''
Main Level Dining Room 10'7'' x 9'5''
Main Level Kitchen 9'5'' x 9'2''
Main Level Full Bathroom 7'11'' x 5'7''

https://www.realtor.ca/real-estate/29207491/8040-radium-golf-course-road-unit-7-radium-hot-springs-radium-hot-springs

Contact Us

Contact us for more information

Generating Captcha

Your Favourites

 

No Favourites Found